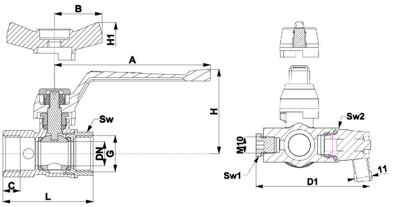
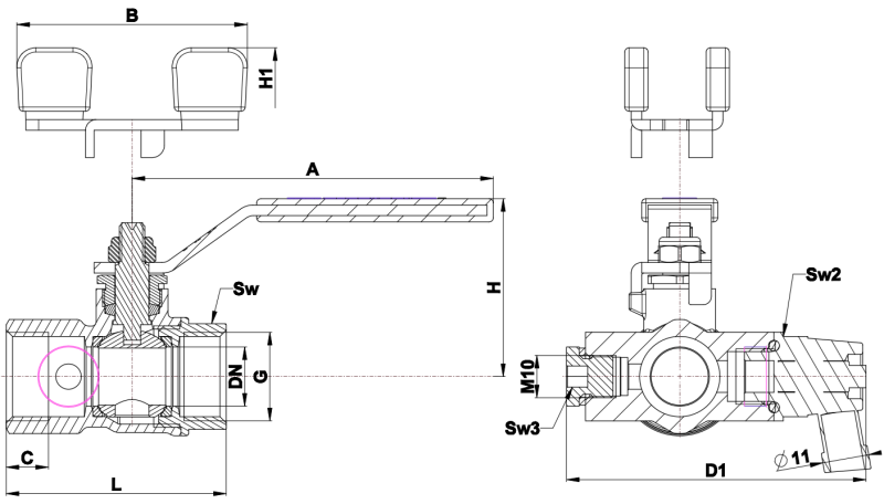
Кульовий клапан Multiport M10

Кульовий клапан Multiport є багатофункціональним запірним клапаном, призначеним для систем, де, окрім перекриття потоку, потрібний контрольний, вентиляційний або дренажний відвід.
Базова версія оснащена випуском з одного боку та різьбленням M10 з іншого, що дозволяє підключати різні зонди, датчики або вимірювальні елементи.
Ця версія доступна у розмірах DN15 та DN20.

Завдяки мультипортовій конструкції клапан забезпечує просте встановлення додаткового обладнання і значно розширює можливості застосування в системах опалення, водопостачання та інших технічних інсталяціях.

Категорія:
  • РОЗМІРИ
  • ТЕХНІЧНІ ДАНІ
  • ВИКОРИСТАННЯ
  • ДОКУМЕНТАЦІЯ
IDENT EAN DN PN G
[in]
L
[mm]
D1
[mm]
B
[mm]
H1
[mm]
  Sw
[mm]
Sw1
[mm]
Sw2
[mm]
1241711 3838963245599 15 25 G1/2" 52,1 70,1 55 38,4 25 17 19
1241712 3838963245605 20 25 G3/4" 59,4 75,5 55 40,6 30 17 19

Дані про роботу

Робочий тиск: максимум 25 бар
Діапазон робочих температур: від -10 °C до +110 °C
(для води від +0,5 °C до +110 °C – без пари)
Середовище: вода (неагресивні середовища)

Якість теплоносія повинна відповідати стандартам ÖNORM H5195 або VDI 2035.
Використання етилен- або пропіленгліколю у змішувальній пропорції 25–50 % дозволено.
При використанні продуктів з етиленгліколем для захисту від замерзання та корозії слід враховувати документацію виробника.

Примітка:
Ущільнення з EPDM є чутливими до мастил на основі мінеральних олив, що може спричинити пошкодження ущільнень EPDM у клапанах, де вони застосовуються.
Кульовий клапан HERZ для гарячої та холодної води не підходить для використання з агресивними середовищами (такими як кислоти, луги, легкозаймисті та вибухонебезпечні гази), оскільки вони можуть зруйнувати ущільнювальні елементи.